1 2 3 4 5 6 7 8 9 10 11 12 13
  • Concurso Pabellón:
  • Concurso Pabellón:
  • Concurso Pabellón:
  • Concurso Pabellón:
  • Concurso Pabellón:
  • Concurso Pabellón:
  • Concurso Pabellón:
  • Concurso Pabellón:
  • Concurso Pabellón:
  • Concurso Pabellón:
  • Concurso Pabellón:
  • Concurso Pabellón:
  • Concurso Pabellón:

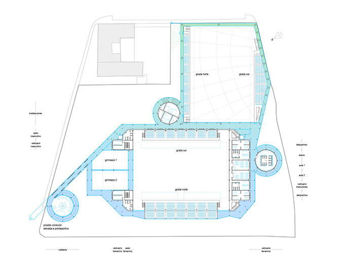
Concurso de ampliación y remodelación del Pabellón deportivo municipal Enrique Blas Echevarria

Organizado la Oficina de Concursos de Arquitectura de Madrid. OCAM Collado Villalba. Madrid.
2017

"HUG&PLAY" una estrategia con la que “abrazar” todo un sistema de intercambios tectónicos y energéticos mediante la acción de “lo lúdico”.

El proyecto se genera como respuesta a la intervención de una pieza arquitectónica existente.

A través de una piel mediadora, se activa un elemento comunicativo que coloniza el edificio primario y lo sirve de servicios e instalaciones (mejorándolo energéticamente).

Una naturaleza representativa, dinámica y expansiva a la vez; capaz de atrapar el exterior más inmediato, definiéndolo y explorando en él múltiples interiores.

Nuevas posibilidades quedan abiertas, dando lugar a acontecimientos singulares; todo ello en una estrecha vinculación con la ciudad deportiva.



Proyecto realizado en colaboración con Pablo Martínez Alonso.